多伦多 Kings Landing 公寓倒挂转让,最低比原价少 20 万+
阅读量:1587
最近市中心 Kings Landing,有几套真正意义上的“硬亏”楼花转让单位流出。
不是营销话术,而是账面清清楚楚的价格倒挂,卖家已经不谈情绪,只谈止损。这类单位,正常市场根本不会公开流通,现在能看到,只有一个原因——
有人真的扛不住了。
本次整理 3 套重点关注单位,全部价格低于原始买入价:
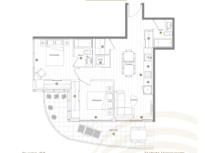
第一套|(性价比最强)
1 房 + Den|2 卫
含 1 个车位,北朝向,668SQFT+Bal

转让价:$568,000
同类 1+Den 户型里,少见的双卫配置,对自住和出租都非常友好,整体门槛被压得很低。
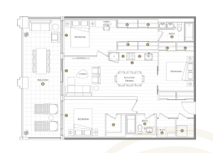
第二套|(大户型重亏款)

3 房2卫|含 1 车位 + 1 Locker,1092SQFT +276 bal ,西朝向
转让价:$888,000
这是典型的“当年买在高点”的大户型,现在卖家选择直接出清,对需要三房的家庭买家来说,成本优势非常明显。
第三套(极少见负现金流转让)

2 房 2 卫 超大阳台
含 1 个车位,780SQFT ,西南朝向
转让价:$749,000
(卖家需倒贴买家完成转让)
这种“卖家倒贴”的情况,在楼花转让里非常少见,真的是超级大漏
为什么 Kings Landing 值得重点看?
为什么选择 Kings Landing?
- 核心成熟地段
项目位于多伦多成熟市中心区域,交通、生活配套、社区氛围都已落地。
地段稳定,未来增值潜力可靠,不依赖远期规划。 - 便捷交通
- 步行可达地铁站和公交枢纽
- 多条主干道近在咫尺,轻松接驳 401 / 404 / Gardiner 高速
- 通勤到市中心或机场均非常便利
- 完善生活配套
- 附近大型超市、商场、餐饮、咖啡馆应有尽有
- 健身房、银行、诊所等生活设施齐全
- 周边学校、幼儿园资源充足,适合家庭自住
- 社区休闲与绿化
- 小区内设有休闲广场、步行花园
- 临近公园和公共绿地,适合运动、散步
- 安全社区环境,适合长期居住
- 高品质户型设计
- 1+Den、两房、三房多种户型选择
- 空间布局合理、功能齐全,适合自住或出租
- 配套车位、储物间,满足生活便利需求
当前机会点
市场进入调整期,部分早期买家压力大,选择提前转让。
这意味着,用比原价低的成本,即可进入一个成熟、便利、长期可居住的市中心社区。
对于自住、家庭购房或中长期投资来说,都非常适合。 快来联系崔姐看房